Leave a Message

Thank you for your message. We will be in touch with you shortly.

43 Crabtree Avenue
43 Crabtree Avenue
VIEW PHOTOS
$733,990

43 Crabtree Avenue

3 Beds 4 Baths 2,100 Sq.Ft.

Description

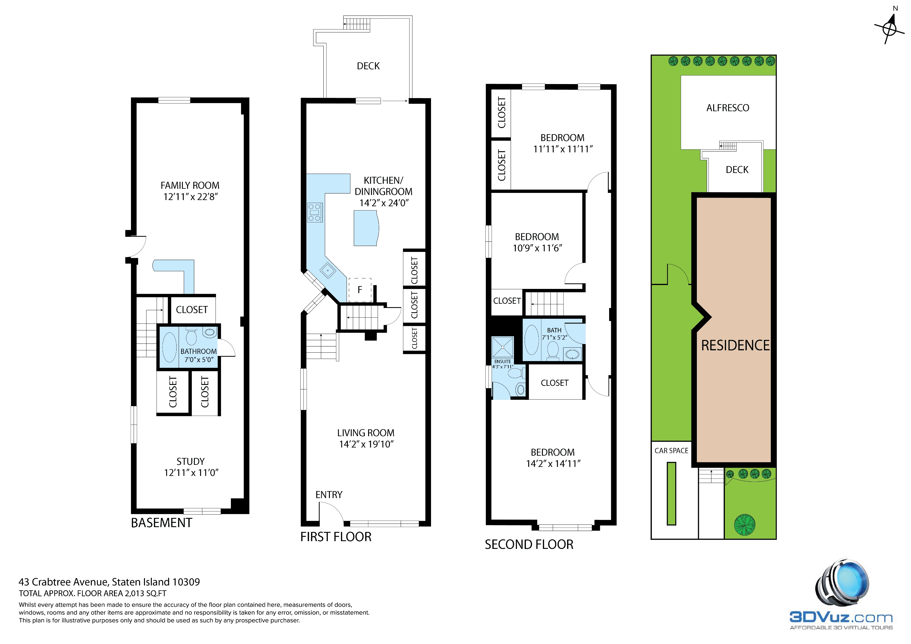
Welcome To Rossville! This luxurious 3 bedroom, 3.5 bath home was built in 2002, and has been meticulously maintained ever since. Semi-Detached, with a large private driveway, this home is centrally located, near all of the conveniences that Rossville has to offer.

Enter this beautiful sun-drenched home into a spacious living room, and feel the open floor concept as you breeze through the main floor, into the GORGEOUS Chef's Kitchen... Matching STUNNING granite countertops, kitchen island AND dining table... and there's tons of cabinets and storage as well. Sliding glass doors open to a full deck off the kitchen, where you can BBQ and enjoy great times with friends and family, There's a nice private backyard to unwind and enjoy a glass of wine!

The second floor boasts three large bedrooms and two full bathrooms, including the private master bathroom.

The basement walk-in level is amazing. In addition to the utility and laundry spaces, the new owners will enjoy the completely finished family room, and dedicated office space for the home office.

The home has central AC and heat, with no ugly baseboards! Park 2-3 cars off-street.

Lets make a deal!!! The sellers have priced their home to sell immediately. Call for a private showing today

Share Property

Location

43 Crabtree Avenue, New York City, NY 10309

Status

Sold
Howard Witz

Howard Witz

TITLE

Licensed Real Estate Salesperson

LICENSE

10301213318

Property

Interior
Laundry room See Remarks
Appliances Dryer, Dishwasher, Gas Cooktop, Gas Oven, Refrigerator, Range Hood, Washer
Flooring Carpet, Hardwood
Total Bedrooms: 3
Half Bathrooms: 1
Full Bathrooms: 3
Other Interior Features Crown Molding, Granite Counters, Kitchen Island
Area & Lot
Total area 2,100 Sq.Ft.
Living area 2,100 Sq.Ft.
MLS® ID RLS10925489
Year Built 2001
Type Residential
Status Sold
Exterior
Stories 2
Air conditioning Central Air
Heat type Central, Natural Gas
Security Features Security System
Other Exterior Features Private Entrance
Parking Private
Finance
Sales Price $733,990
Real Estate Tax $7,320 yearly

Work with

We are friendly, easy to talk to, and easy to understand. We’re not intimidating or judgmental — so clients from all walks of life feel comfortable talking to us about their real estate needs and concerns. Our messaging is warm, sincere, and familiar. We’re not money-driven.