Leave a Message

Thank you for your message. We will be in touch with you shortly.

215 E 9th Street
215 E 9th Street
VIEW PHOTOS
$1,385,000

215 E 9th Street

3 Beds 3 Baths 1,960 Sq.Ft.

Description

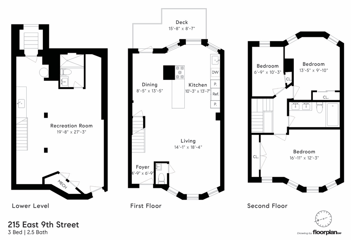
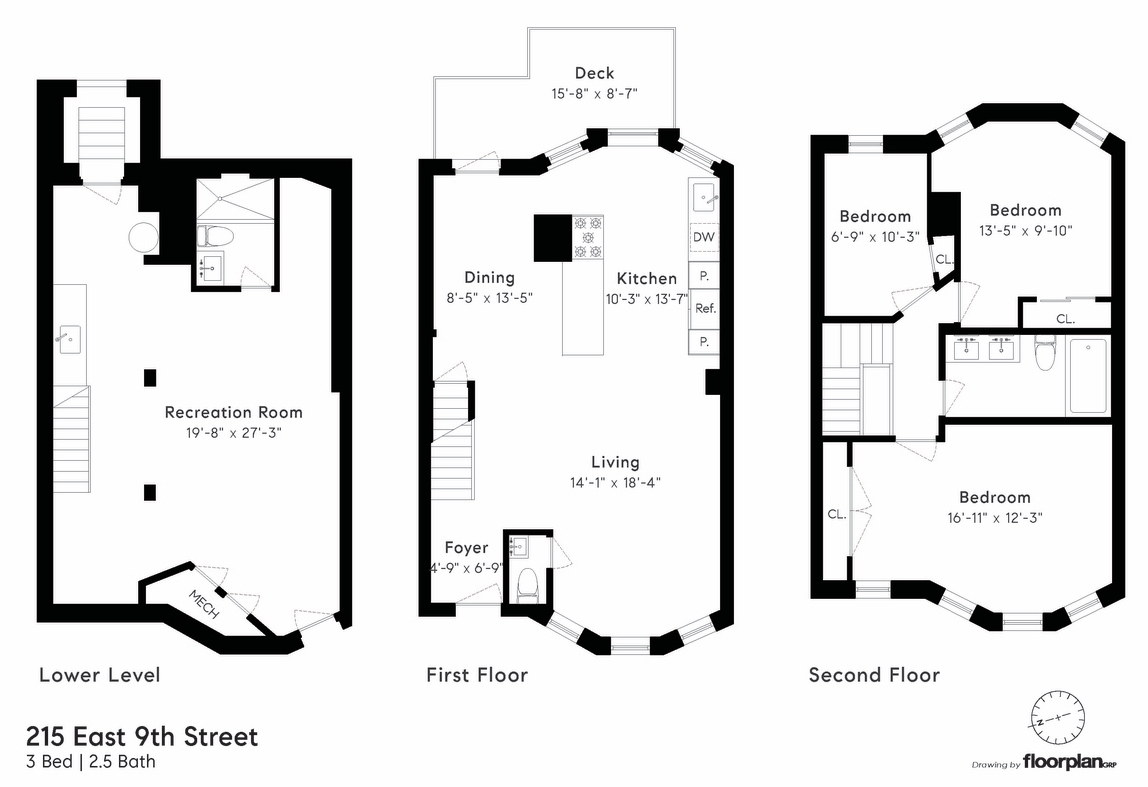
Be the first to live in this turn-key three-bedroom, two-and-a-half-bathroom 20 foot wide brick townhouse featuring timeless designer style, private outdoor space, brand new kitchens and baths and updated mechanicals in desirable Prospect Park South/Kensington.

Balancing classic row house details with a warm, modern feel, this three-level home offers classic Brooklyn townhouse vibes from the high ceilings and exposed brick walls to the gorgeous wide-plank fawn chestnut floors. The parlor level welcomes you inside with a gracious foyer flanked by a powder room, while the expansive open-plan layout sets the stage for lively entertaining and comfortable daily life. Relax alongside large windows in the living room, enjoy a spacious dining area or step out to the deck for al fresco meals. Chefs will love the modern Epicurean dream kitchen featuring rows of oak-color cabinetry and a massive waterfall island topped with Calacatta quartz countertops and an oversized sink. Brand-new appliances with full warranties include a vented Forno French door electric range with a convection oven, a Forno French door refrigerator and a dishwasher. A beautifully restored exposed brick wall and stained-glass windows infuse the sleek space with incredible warmth and architectural detail. Head upstairs to discover the primary bedroom's 11-foot-tall exposed beam ceiling, large windows over-looking the treetops and roomy closet. Two more spacious and bright bedrooms overlook the rear of the home, and the huge full bathroom on this floor impresses with floor-to-ceiling designer tile, a wide double vanity and a large tub/shower.

Fun and games await on the fully finished basement level featuring restored tin ceilings, a wet bar with a sink and a vast footprint for a family room, office area, home gym, rec room or all of the above. Enjoy a washer-dryer and a well-appointed bathroom with a walk-in shower add exceptional convenience. This home's extensive upgrades include brand-new windows, updated electrical and plumbing as well as a brand-new split AC/Heat system throughout. A charming brick facade completes this outstanding move-in ready showplace. From this lovely tree-lined location where Prospect Park South meets Kensington, you'll enjoy a wonderful residential quality of life with easy access to fantastic local shopping, dining and nightlife. Prospect Park, the Parade Grounds and Kensington Dog Park are just four blocks away, and transportation is effortless thanks to B, Q, F and G trains, excellent bus service and CitiBikes all nearby

Share Property

Location

215 E 9th Street, Brooklyn, NY 11218

Status

Sold
Joe Cruz

Joe Cruz

TITLE

Licensed Associate Real Estate Broker

LICENSE

10301214722

PHONE

9174597681

Louis Belisario

Louis Belisario

TITLE

Licensed Associate Real Estate Broker

LICENSE

10301206828

PHONE

3477023316

Property

Interior
Laundry room Building In Basement, In Basement
Total Bedrooms: 3
Half Bathrooms: 1
Full Bathrooms: 2
Area & Lot
Lot Area 800 Sq.Ft.
Living area 1,960 Sq.Ft.
MLS® ID RLS10963327
Year Built 1910
Type Townhouse
Status Sold
Exterior
Stories 2
Air conditioning Central Air
Heat type Forced Air
Finance
Sales Price $1,385,000
Real Estate Tax $1,956 yearly

360 Virtual Tour

Take a tour of this property

Work with

We are friendly, easy to talk to, and easy to understand. We’re not intimidating or judgmental — so clients from all walks of life feel comfortable talking to us about their real estate needs and concerns. Our messaging is warm, sincere, and familiar. We’re not money-driven.